IMGP îlot Utrillo Vidal

As part of the Inventons la Métropole du Grand Paris competition, two sites located in Montfermeil and Clichy-sous-Bois - neighboring municipalities of Seine-Saint-Denis - offer a unique opportunity for urban transformation. Close to the future Grand Paris Express station, these strategic locations enjoy a strong attractiveness and carry an ambitious program.

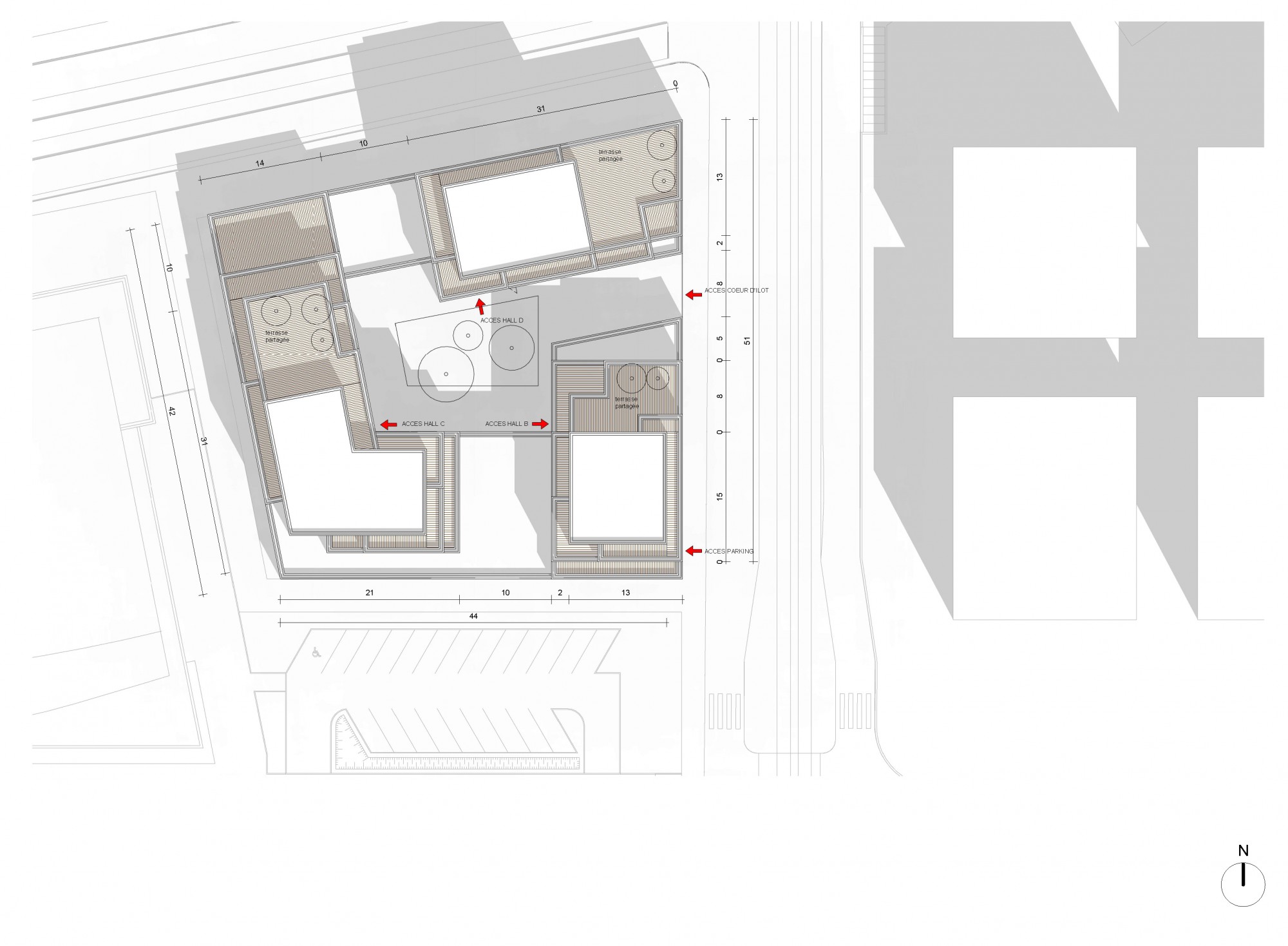
A total of 235 homes in accession, spread over the two blocks, will rub shoulders with local shops and a large covered market on the ground floor. On the roof, vegetable farms will complement this system with local food production.

At the level of the neighborhood, a real virtuous ecosystem is being organized: vegetable production, direct sales, waste composting - so many levers to sustainably register the project in its territory.

En savoir plus

Infos projet

Client :
Grand Paris Aménagement
Location :
Clichy-sous-Bois / Montfermeil (France)
Design Team :
Groupe Pichet (Real estate developer)
Miralles Tagliabue EMBT (architect)
ilimelgo (architect)
Land’Act (paysagist)
Ecothec (BET)
Scoping (BET TCE)
Etamine (BET HQE)
Terreauciel (Agronome)
Études et chantier (Exploitant maraîcher)
Mission :
Complete project management
Area :
N.C.
Construction cost :
25,3 M€ HT
Phase/date :
Competition IMGP 2018