Chaufferie géothermie

Au croisement d’un quartier pavillonnaire, d’un complexe scolaire et d’un paysage arboré en bord de boucle de Sévigné, la chaufferie de Clichy-sous-Bois s’inscrit avec justesse dans un tissu urbain mêlant nature et habitat. Pensée pour accompagner la transition énergétique, elle puise son énergie à plus de 90 % dans les ressources renouvelables — principalement la géothermie — pour alimenter durablement un vaste réseau de chaleur. À la fois sobre et ancrée dans son territoire, son architecture monolithique s’attache à conjuguer rigueur technique et qualité d’insertion paysagère.

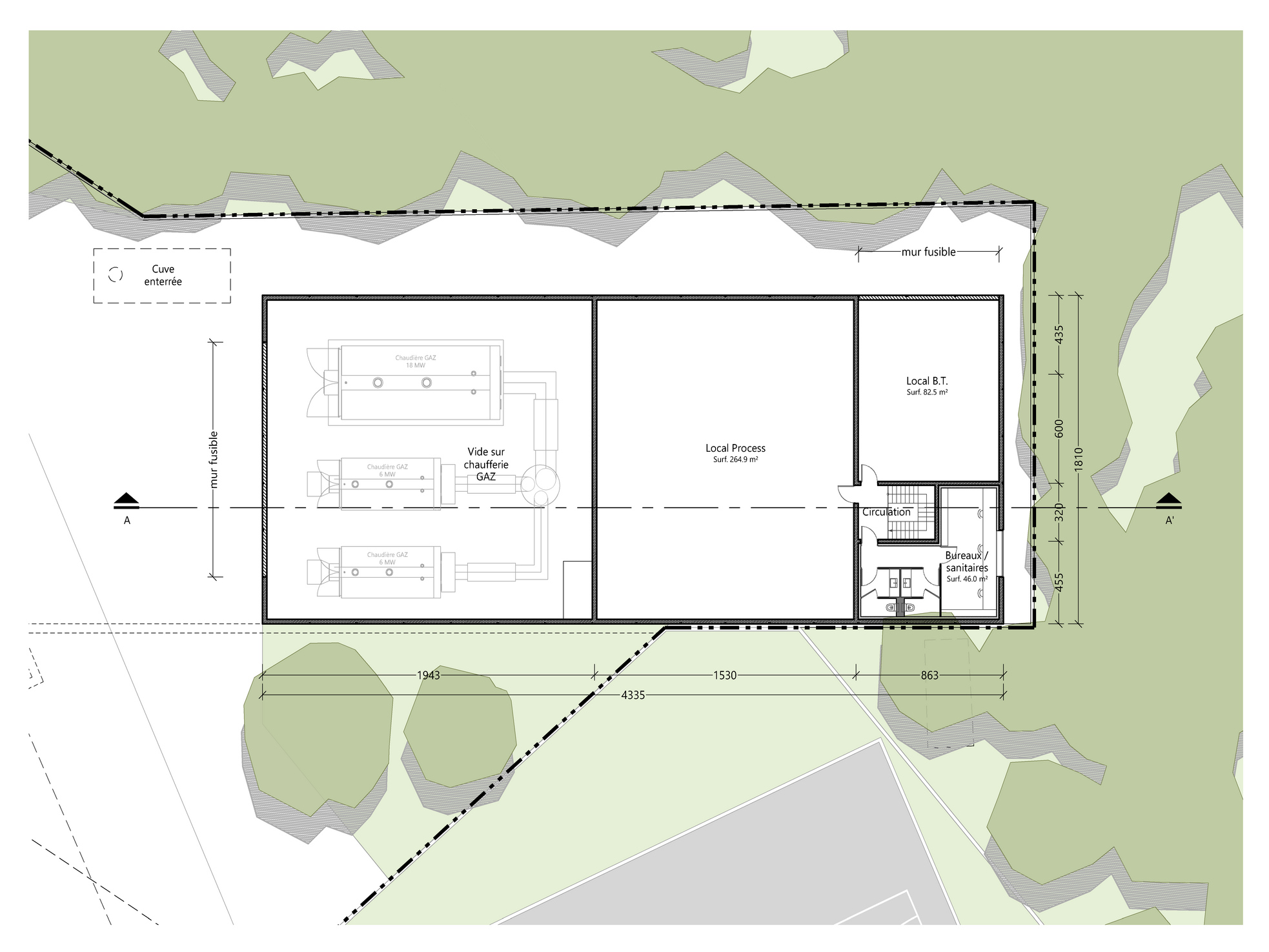
Implantation et contexte paysager

À la croisée des chemins entre un quartier pavillonnaire, un complexe scolaire et un paysage arboré longeant la boucle de Sévigné, la chaufferie s’inscrit dans un tissu vivant, mêlant nature, habitations et lieux d’apprentissage. Elle se veut respectueuse de son environnement, à la fois discrète dans son intégration paysagère et forte dans son ambition environnementale.

Une réponse aux urgences énergétiques

Cette infrastructure répond à une double urgence : celle de la transition écologique et celle de garantir une souveraineté énergétique à l’échelle locale, pour aujourd’hui comme pour les générations futures. Alimentée à plus de 90 % par des énergies renouvelables — principalement la chaleur issue des nappes géothermales et des pompes à chaleur —, elle permettra d’alimenter un réseau de 27 kilomètres de canalisations neuves, 176 sous-stations basse température, et de couvrir l’équivalent de 100 GWh de besoins annuels en chauffage et en eau chaude.

Un réseau accessible et inclusif

Parce qu’un territoire se construit dans sa diversité, le réseau a été pensé pour s’adapter à toutes les formes d’habitat, y compris les maisons individuelles, en leur proposant un mode de raccordement optimisé et durable à la géothermie.

Une architecture ancrée et maîtrisée

L’architecture de la chaufferie est érigée comme un monolithe de béton teinté dans la masse, sa silhouette est rythmée par un calepinage soigné, qui lui donne une présence sobre et élégante. Sa couleur, dans les tons ocre-rouge, évoque les terres ferrugineuses locales et les toitures en tuiles des maisons voisines. Elle s’ancre ainsi dans le paysage sans jamais le dominer.

Une construction efficace et qualitative

Construite à partir de prémurs fabriqués hors site, la chaufferie allie rapidité de mise en œuvre, durabilité et qualité architecturale. Elle témoigne d’un soin apporté autant à la technique qu’à l’esthétique, dans un dialogue constant avec son environnement urbain en mutation.

Une ambition partagée pour un futur durable

À travers ce projet, les villes de Clichy-sous-Bois et Livry-Gargan font un pas concret vers un futur plus respectueux de la planète, en offrant à leurs habitants une énergie propre, stable et équitable. Une énergie qui prend sa source dans le sol, et s’élève pour réchauffer les foyers, durablement.

En savoir plus

Infos projet

Maîtrise d’ouvrage :
Communes de Clichy-sous-bois et de Livry-Gargan
Lieu :
Clichy-sous-Bois (93)
Équipe de conception :
ilimelgo (architecte)
Mission :
Maîtrise d’oeuvre complète
Surface :
850 m² SDP
Coût des travaux :
N.C
Phase/date :
Concours 2022