40 logements, ZAC Beaupré Lalande

Inscrit au nord du quartier de Beaupré Lalande, à Vannes, le projet se déploie sur une légère pente, offrant un cadrage privilégié sur la ville et les continuités végétales environnantes. Il marque une première articulation bâtie en lisière du tissu pavillonnaire existant, ménageant des perspectives ouvertes vers le futur cœur paysager du quartier et créant une transition douce entre les espaces urbains et les franges naturelles.

Habiter la continuité

Le projet s’inscrit dans la continuité urbaine et paysagère du site. Situé entre les franges végétales existantes et les futurs espaces bâtis, il s’attache à ménager une transition douce avec le tissu pavillonnaire voisin.
Plutôt qu’introduire une rupture, l’architecture recherche l’ajustement : elle s’aligne sur les lignes de force du territoire, épouse la topographie et préserve les respirations végétales qui jalonnent le site.
Le socle dépasse ici son rôle d’infrastructure pour devenir un véritable support d’usages. Il ancre le projet dans le sol, accueille un parking mutualisé avec le secteur 6 ainsi que des locaux vélos généreux, directement connectés aux cheminements doux du quartier. Ce socle actif assure la continuité du sol habité et articule naturellement la mobilité active et la mobilité urbaine.

Deux volumes, un équilibre

L’opération se compose de deux corps bâtis distincts mais complémentaires, qui scandent la volumétrie et structurent la lecture du site.
Le premier, ancré au sol, accueille des espaces partagés et un logement familial prolongé par un jardin. Le second, progressivement élevé jusqu’à R+3, amorce une graduation maîtrisée vers le sud, accompagnant le relief naturel du terrain.
Les toitures, traitées comme de véritables paysages habités, orchestrent un rythme alterné : leurs retraits, pentes et inclinaisons modulent la silhouette du projet tout en renforçant une lecture stratifiée du territoire.
Cette composition rythmée établit un dialogue entre masses et horizons, entre ancrage et élévation, affirmant une présence mesurée à l’échelle du quartier.

Une architecture de toits habités

L’architecture se déploie dans une écriture de toits habités, compatible avec la morphologie du bâti vannetais et la lumière du littoral.
Une enveloppe minérale de teinte claire unifie le projet et se prolonge en toiture dans une teinte similaire de zinc, dessinant une volumétrie continue et dynamique. Les pignons se distinguent par un parement de brique ou une résille d’aluminium bioclimatique, selon les expositions, offrant à chaque façade une réponse climatique et plastique adaptée.
Sous ces toitures, de larges terrasses en double hauteur, serres et verrières toute hauteur abritent des espaces à vivre – prolongements des logements ou lieux collectifs partagés.
Cette architecture de toits permet également l’intégration discrète de centrales photovoltaïques, dimensionnées selon les futurs choix énergétiques des opérateurs, renforçant l’ambition environnementale du projet.
La trame constructive des logements rythme les façades dans une écriture sobre et rationnelle : loggias généreuses, façades filtrantes, transparence des rez-de-chaussée alternant bois, béton et métal.

Qualité d’usage et cohérence urbaine

L’organisation des bâtiments s’appuie sur une logique claire de double orientation et de logements traversants, garantissant un confort d’été optimal et une ventilation naturelle permanente.
Les coursives nord favorisent la lumière, les échanges et la diversité des vues. À l’ouest et au sud, de grandes terrasses s’ouvrent sur le grand paysage, tandis que les serres et loggias prolongent les séjours vers la lumière.
Le socle du rez-de-chaussée accueille les halls, les locaux vélos et des espaces partagés en lien direct avec la venelle piétonne. Les circulations automobiles sont maintenues en périphérie, libérant un cœur d’îlot apaisé et végétalisé.
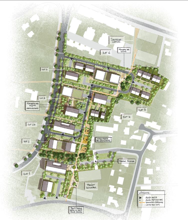
Au centre, la Placette des Voisins devient le cœur vivant du projet : un lieu de rencontre entre végétation et urbanité, où se croisent les mobilités douces, les accès aux halls et les espaces paysagers.

Matérialité et ancrage environnemental

L’écriture architecturale conjugue minéralité et domesticité. Les façades en brique claire s’élèvent depuis le sol dont elles semblent issues, tandis que le bois, présent dans les loggias et les clôtures ajourées des parkings, apporte chaleur et tactilité.
Le lattis prolonge la matérialité du socle jusqu’aux niveaux supérieurs, créant une élévation continue et un jeu d’ombres subtils.
Les toitures végétalisées et terrasses plantées participent à la gestion douce des eaux pluviales et à la régulation thermique. Les jardins de pluie, au pied des bâtiments, filtrent naturellement les eaux de ruissellement, réintroduisant un cycle vertueux entre bâti et nature.
Le choix des matériaux – béton brut, brique d’argile, bois naturel et zinc clair – privilégie la durabilité, la sobriété carbone et la capacité de vieillissement harmonieux dans le temps.

Une architecture d’équilibre

À la croisée du territoire et du quotidien, le projet de Beaupré Lalande affirme une architecture d’équilibre : entre densité et apaisement, entre ancrage urbain et ouverture paysagère.
Il prolonge la trame du quartier tout en offrant des respirations végétales, concilie compacité et qualité d’habiter, économie de moyens et générosité d’usage.
Par sa matérialité mesurée, son rapport attentif au sol et son écriture de toits habités, il propose une manière apaisée d’habiter la ville de Vannes : un habitat ouvert, durable et respectueux du vivant.

En savoir plus

Infos projet

Maîtrise d’ouvrage :
Giboire
Lieu :
Vannes (56)
Équipe de conception :
Iris Chervet (urbaniste)
ilimelgo (architecte)
FAAR (paysagiste)
Mission :
Concours
Surface :
N.C
Coût des travaux :
N.C.
Phase/date :
Etudes en cours