Centre nautique d'aviron
Porté par la ville, le projet du futur club d’aviron est très attendu, tant par les licenciés de la Société Nautique du Perreux que par les riverains.
Mais une telle transformation ne va pas sans questionnements ni tensions. Car comment penser ce nouvel équipement à l’échelle du territoire, dans un rapport à la fois de continuité et de rupture, en dialogue avec le paysage, la ville, et surtout avec l’existant, ce « déjà-là » qu’il faut considérer avec respect ?
L’enjeu est d’importance : concevoir un lieu fédérateur, qui ne divise pas, mais au contraire rassemble les usagers et les habitants, en proposant une architecture juste, accueillante et pleinement intégrée dans son contexte.
L’URBANITÉ ET LE PAYSAGE
Le paysage des bords de Marne témoigne d’une urbanité tournée vers l’eau, composée d’architectures bigarrées - évoquant des chalets anglo-Normands, des maisons en meulières de style Art Nouveau - nées de l’essor des guinguettes, du canotage et autres activités nautiques. Cette texture urbaine si particulière met en scène une relation à la terre, à l’eau et au ciel que l’on ne trouve pas ailleurs ; c’est la singularité des bords de Marne.
Il y a des fragments de villes et de paysages kaléidoscopiques qui jalonnent les quais et les berges, mais que les boucles de la Marne mettent en relation tel un trait d’union ; l’esprit des « guinguettes » est toujours bien présent dans l’imaginaire collectif.
On remarque aussi une porosité intéressante le long de cette « façade urbaine » composée de jardins, de murets et de façades variées, c’est ce réseau de venelles permettant au regard de traverser et relier le plateau haut de la ville aux berges et inversement.
LES USAGES
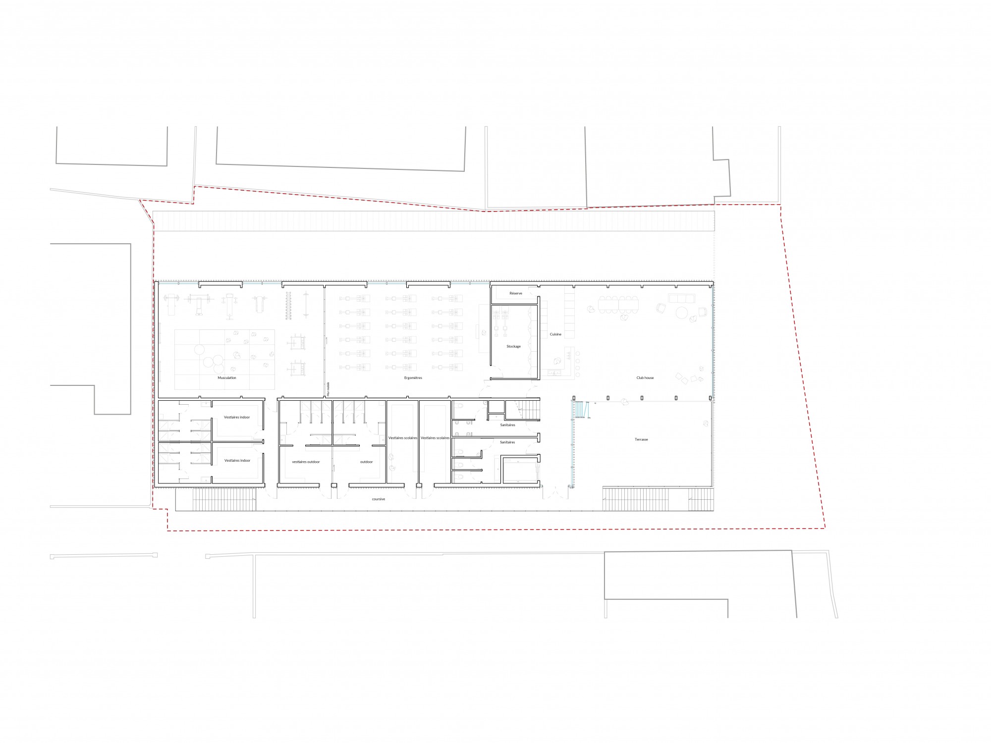
L’organisation en plan se veut rationnelle et efficace ; le local à bateau dispose de travées de
stockage optimisées, les locaux dédiés à la vie du club sont associés afin d’économiser les circulations et faire en sorte que les usagers se repèrent aisément et au plus court.
Mais le travail en coupe est également décisif ; les vestiaires surplombent le tank à ramer et l’atelier pour faciliter les accès, la maintenance des réseaux et éviter les risques de fuite dans le local à bateaux, les locaux techniques surmontent les vestiaires pour fournir les besoins en fluide au plus près des points de puisage, etc.
LA COMPOSITION ARCHITECTURALE
La façade principale s’inscrit dans l’alignement des maisons en bandes au nord, dont le recul avec la rue forme le parvis donnant sur le quai d’Argonne.
L’allée du Coq d’Or, distribuant déjà une poignée d’habitations, assume le rôle d’accès principal et de desserte du centre nautique.
Enfin, au nord, une trame de stockage est laissée libre de toute construction afin de créer un espacement salutaire vis-à-vis des maisonnées et des jardins voisins.
Ce dispositif autonomise la forme en l’émancipant des limites parcellaires et organise une relation à la ville et au paysage analogue à ces porosités orchestrées par les venelles ; l’air, la lumière et le regard traversent de tous côtés de sorte que le futur centre nautique et les habitations voisines bénéficient de vues et de respirations vers le ciel et la Marne.
LA FORME
Ces intentions sont également traduites dans une forme qui se veut élémentaire ; les volumes qui la composent paraissent s’associer naturellement les uns avec les autres ; le local à bateau s’apparente à un socle sur lequel sont disposés deux volumes en bois abritant les lieux de vie du club dont les toitures se décalent pour offrir une « terrasse urbaine » généreuse en balcon sur la Marne.
LES PRINCIPES CONSTRUCTIFS
Nos dispositions constructives correspondent à une volonté d’optimisation des coûts, de valorisation de filières respectueuses de l’humain et de son milieu, à des critères de performance, de sureté et de robustesse et, enfin, de pérennité et de mutabilité de l’ouvrage. Elles concourent à une stratégie de mise en oeuvre du « bon matériau au bon endroit » et d’une démarche de sobriété énergétique et de décarbonation de l’ouvrage.
Ainsi, le socle en béton armé, résistant à l’eau et aux chocs en zone submersible, constitue le toit sur lequel sont disposés les volumes bois de la vie du club, faciles à construire et assemblés en filière sèche, afin de construire léger et consommer moins de matière.
LES FACADES
Le traitement de ces volumes participe d’une volonté de mise en cohérence par le déploiement d’un dispositif de clairevoies unifiant les façades tout en les différenciant par le dessin et la matière selon les niveaux et les usages. Ainsi, le socle est revêtu d’un barreaudage vertical le long du local à bateaux tandis que les volumes bois en émergence sont revêtus d’un lattis bois vertical, agissant tel un filtre selon le degré de porosité, grâce au resserrement ou au relâchement de ses plis, qui dissimulent, ou à l’inverse, donnent à voir, les usages.
Enfin la façade vitrée en accordéon du club-house est à même de se dévêtir sur toute sa hauteur afin d’incorporer l’ensemble de la terrasse à ce volume.
Le dessin des façades est l’expression de nos intentions architecturales ; le bâtiment se développe par strates continûment dans le paysage. La trame des lattis structure son assise horizontale, tandis que les lignes de toiture légères se déploient et soulignent leur rapport au ciel, le tout formant une unité, calme et sereine.
LE PARTI ENVIRONNEMENTAL
Au-delà de cette démarche de sobriété et de construction légère « bas-carbone » (filière bois et emploi de matériaux biosourcés), le projet s’évertue à disposer de principes climatiques vertueux. Citons à ce titre l’éclairement et la ventilation naturels, la production d’eau chaude sanitaire via panneaux solaires, la récupération des eaux pluviales et enfin l’infiltration de l’eau de ruissellement à la parcelle.
Ces dispositions techniques ont pour objet de renforcer la pérennité de l’ouvrage, limiter la maintenance et les consommations d’énergie, favoriser la création d’îlot de fraicheur et enfin contribuer au bien-être des utilisateurs.
Infos projet
Maîtrise d’ouvrage :
Ville du Perreux-sur-Marne
Lieu :
Le Perreux-sur-Marne (94)
Équipe de conception :
ilimelgo (architecte)
B27 (BET TCE)
Gamba (BET acoustique)
Espace Libre (paysagiste)
Mission :
Concours
Surface :
1 770 m²
Coût des travaux :
3,4 M€ HT (Tranche ferme / Club nautique)
500 000€ HT (Tranche optionnelle / Ponton)
Phase/date :
Concours 2022
 
		  				 
		  				 
		  				 
		  				 
		  				 
		  				 
		  				 
		  				 
		  				 
		  				 
		  				 
		  				 
		  				 
		  				 
		  				 
		  				 
		  				 
		  				