Centre d'aviron

Implanté en bord de Seine, en lisière de la forêt de Fontainebleau, le futur centre nautique régional d’aviron s’organise autour d’une place haute, entre deux bâtiments orientés selon le cours du fleuve. Pensé comme un équipement fonctionnel et accueillant, il associe espaces de stockage, ateliers, simulateur, vestiaires, et lieux de formation. Ses toitures en métal plissé, inspirées des fermes agricoles locales, ancrent le projet dans son territoire.

Un équipement ancré dans son territoire

Situé en bordure de Seine, en lisière de la forêt de Fontainebleau, le projet de centre nautique d’aviron s’inscrit dans un paysage remarquable, à la croisée du fleuve, de la forêt et des champs. Ce pôle régional dédié à la pratique de l’aviron articule sa composition autour d’une grande place haute, espace de rencontre et de rassemblement, entre deux bâtiments aux allures de « hangars à bateaux », orientés dans l’axe du cours d’eau.

Deux bâtiments complémentaires

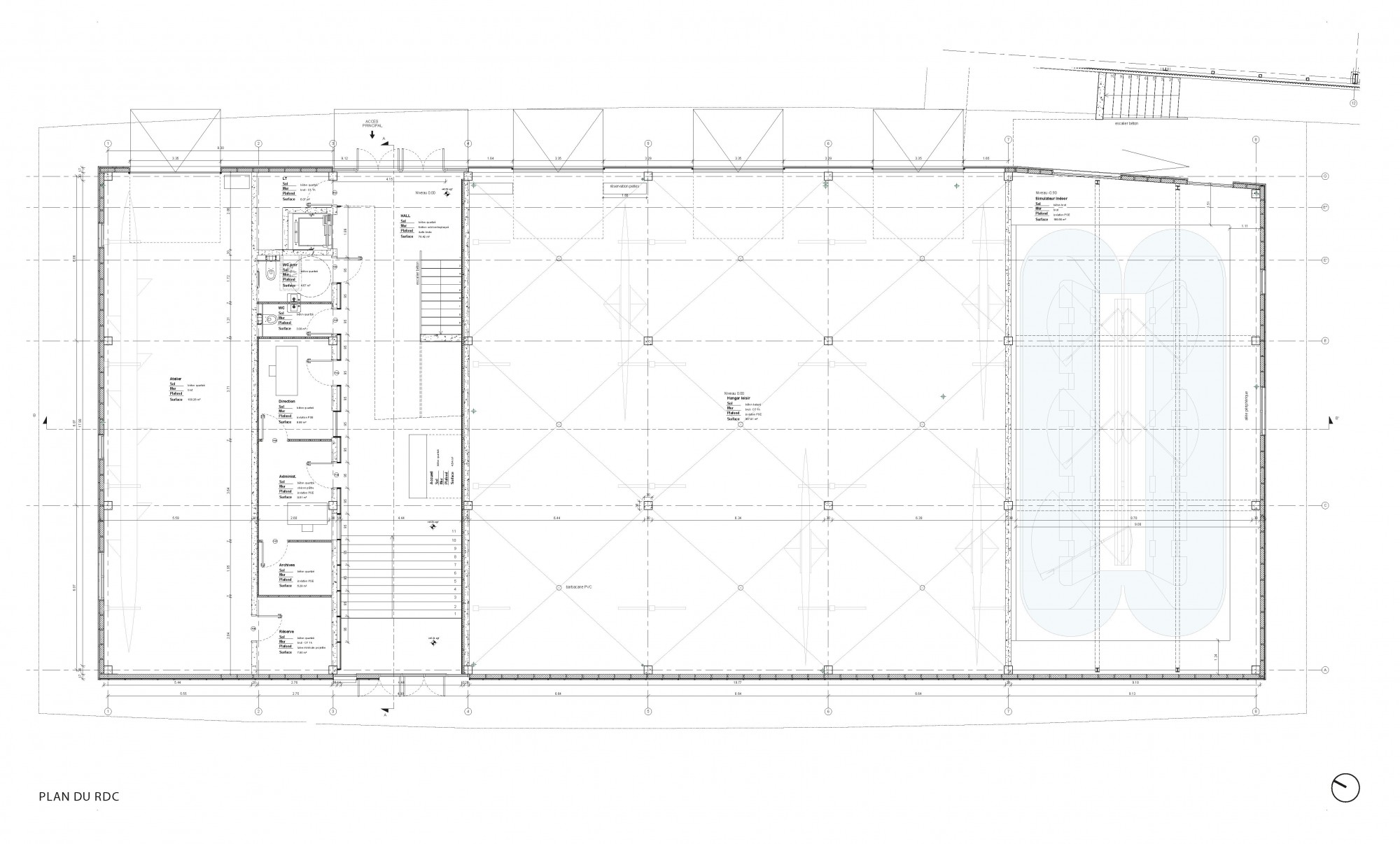
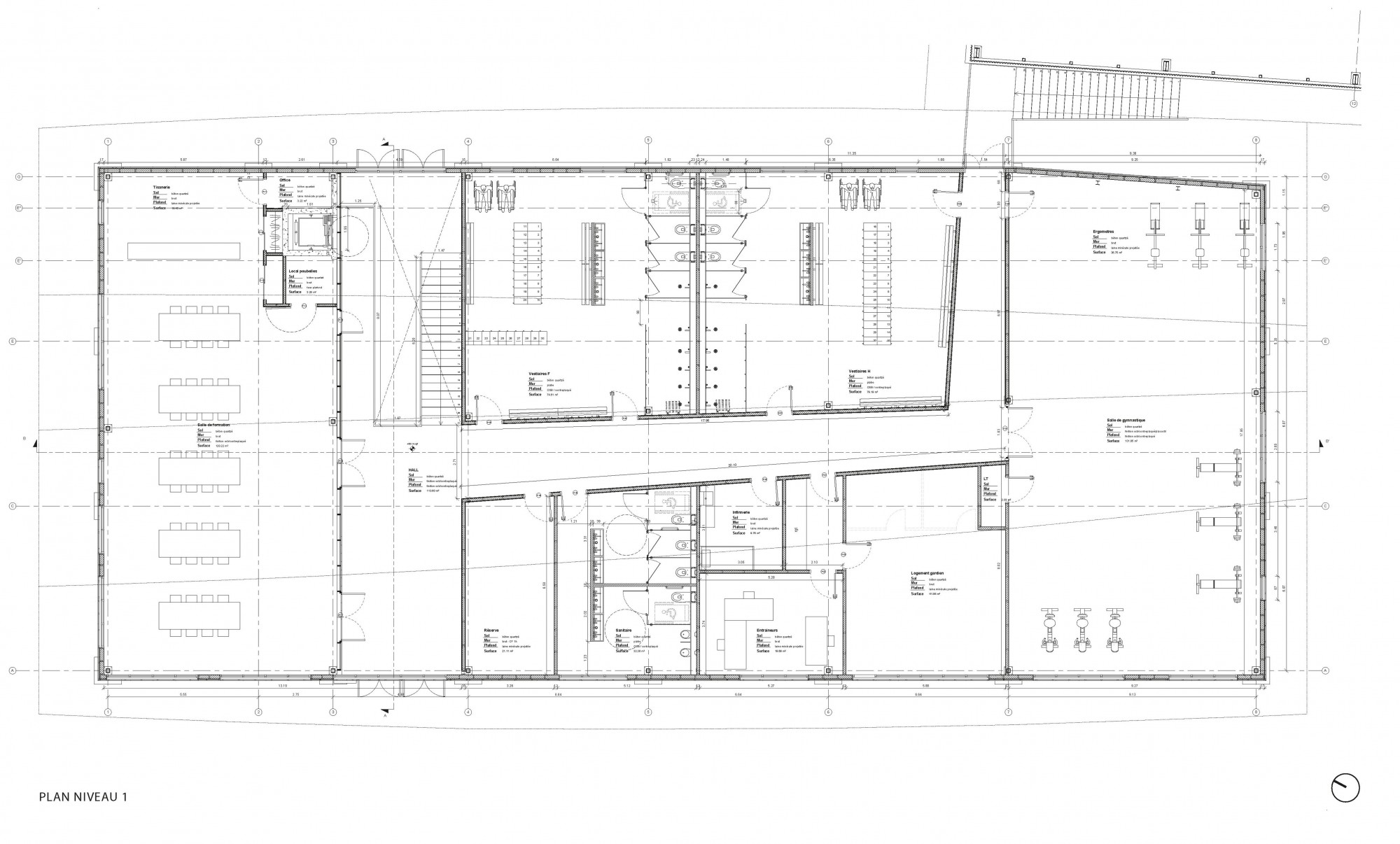
Le bâtiment principal, organisé sur deux niveaux, concentre l’essentiel des fonctions du centre :
Au rez-de-chaussée, il accueille les espaces de stockage pour les embarcations, les zones d’entretien, un atelier de réparation, un accueil, les bureaux du personnel et un volume dédié à l’installation d’un simulateur d’entraînement en intérieur.
À l’étage, sont regroupés les espaces à usage quotidien pour les usagers : vestiaires, salle de mise en forme, espace de formation, lieux de vie, rangements et réserves.
Le second bâtiment, de plain-pied, est dédié au stockage des bateaux de grande longueur, principalement destinés au pôle compétition. Il vient compléter l’offre technique du centre, tout en allégeant la densité programmatique du bâtiment principal.

Une architecture sobre et évocatrice

L’ensemble est coiffé d’une grande toiture en métal plissé, qui confère au projet une silhouette identifiable, à la fois contemporaine et familière. Par ses proportions, elle évoque les vastes fermes agricoles de la région. Par son dessin, elle rappelle les plis de l’eau, les ondulations du courant et les formes élancées des coques de bateaux.
Cette écriture architecturale traduit la vocation du lieu : un équipement fonctionnel, robuste et ouvert sur son environnement, qui conjugue identité territoriale et qualité d’usage.

En savoir plus

Infos projet

Maîtrise d’ouvrage :
Communauté de communes du pays de Fontainebleau
Lieu :
Avon (France)
Équipe de conception :
ilimelgo (architecte mandataire)
artificial (architecte associé)
EVTB (économiste)
Ferest Ing (BET Fluides)
Metz ingénierie (BET Structure)
Mission :
Maîtrise d'oeuvre complète (suspendu)
Surface :
2 000 m²
Coût des travaux :
2,2 M€ HT
Phase/date :
Études, 2014