Bureaux Arcs de Seine

Construit en 1974 sur le quai du Point du Jour, cet ensemble tertiaire, conçu par l’agence new-yorkaise SOM, se compose de quatre édifices implantés en bord de Seine. Emblématique du paysage de Boulogne-Billancourt, il se distingue par son arche monumentale qui marque l’entrée du site, ainsi que par ses façades aux motifs géométriques évoquant les miroitements du fleuve en contrebas.
L’agence est aujourd’hui en charge de la rénovation des plateaux de bureaux et des halls des bâtiments A et B, ainsi que de la création de nouveaux espaces partagés : un business center et une salle de fitness viennent compléter l’offre de services du campus.

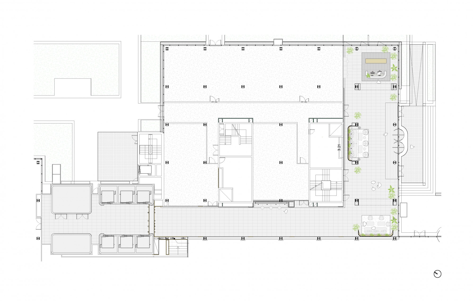
Restructuration du bâtiment A

Le bâtiment A fait l'objet d'une restructuration partielle. L'augmentation de la densité des plateaux par niveau a nécessité la construction d'un nouvel escalier de secours. En outre, un centre d'affaires et une salle de fitness ont été créés au niveau du jardin, enrichissant ainsi la gamme de services du site.

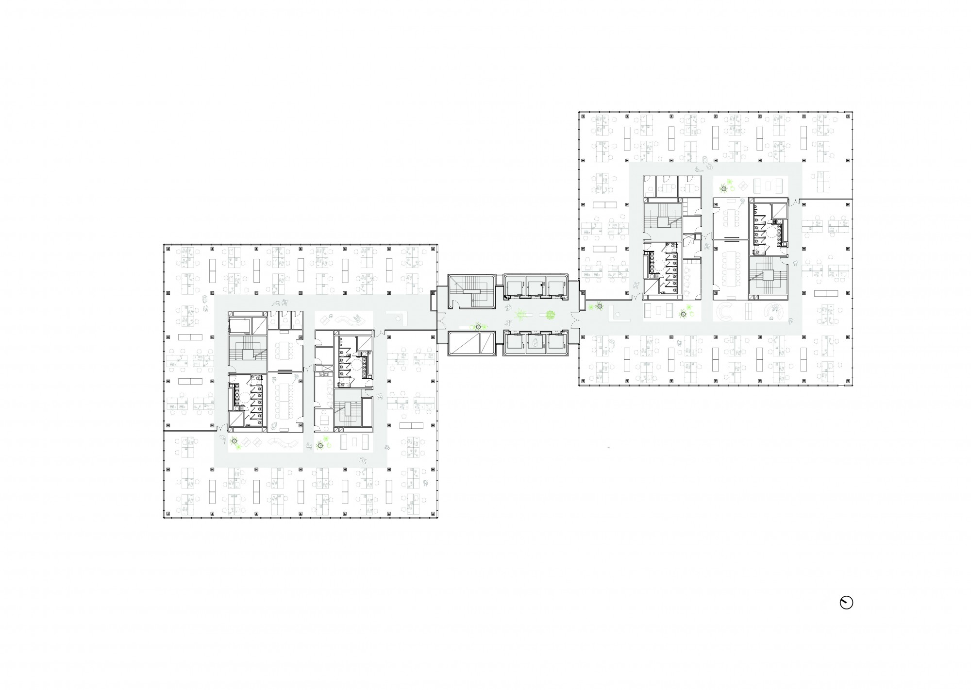
Composition complète du bâtiment B

Le bâtiment B a été entièrement repensé, de la zone de réception aux étagères des bureaux et aux halls d'ascenseur. L'ensemble du parcours utilisateur a été retravaillé pour offrir des espaces lisibles, efficaces et agréables.

Continuité avec l'architecture d'origine

L'esprit du projet étend et renouvelle les fondamentaux du bâtiment imaginé par SOM dans les années 1970. Les circulations sont fluides, les accès intuitifs et la lumière naturelle irrigue généreusement tous les espaces de travail.

Ambiances légères et matériaux nobles

Les atmosphères intérieures profitent des qualités du site en améliorant la lumière et le scintillement de la Seine. Une touche de domesticité est apportée par l'utilisation de matériaux nobles - bois, pierre, métal - qui donnent à l'endroit un ton à la fois sobre et chaleureux.

Une architecture sereine et intemporelle

L'ensemble contribue à une architecture élégante et contemporaine sans ostentation, qui inspire le calme et la sérénité tout en respectant le patrimoine du lieu.

En savoir plus

Infos projet

Maitrise d'ouvrage :
SAS Prothin
Lieu :
Boulogne-Billancourt (France)
Équipe de conception :
ilimelgo (architecte)
B27 (BET TCE)
Mission :
Maîtrise d'oeuvre complète + OPC
Surface :
13 800 m²
Coût des travaux :
9,8 M€ HT
Phase/date :
Chantier en cours