Centre commercial Bel-Est

Dans le cadre d’une réhabilitation énergétique pilotée par le groupe EDF Optimal Solutions, la société USCO, gestionnaire du centre commercial Bel-Est à Bagnolet, nous a confié la transformation de son entrée principale. Cette intervention s’inscrit dans un ensemble de solutions d’optimisation énergétique, dont la plus emblématique est la création d’une serre pensée comme une véritable « bulle climatique », s’ouvrant sur le mail du centre.

Une intervention différenciée selon les usages

Le traitement architectural des ouvrages varie selon leur usage et leur fonction.
Ainsi, l’entrée secondaire et le sas créés sur la passerelle PIR reçoivent un traitement minimal, par la création de façades homogènes avec l’existant, dans la continuité des surplombs de l’édifice.
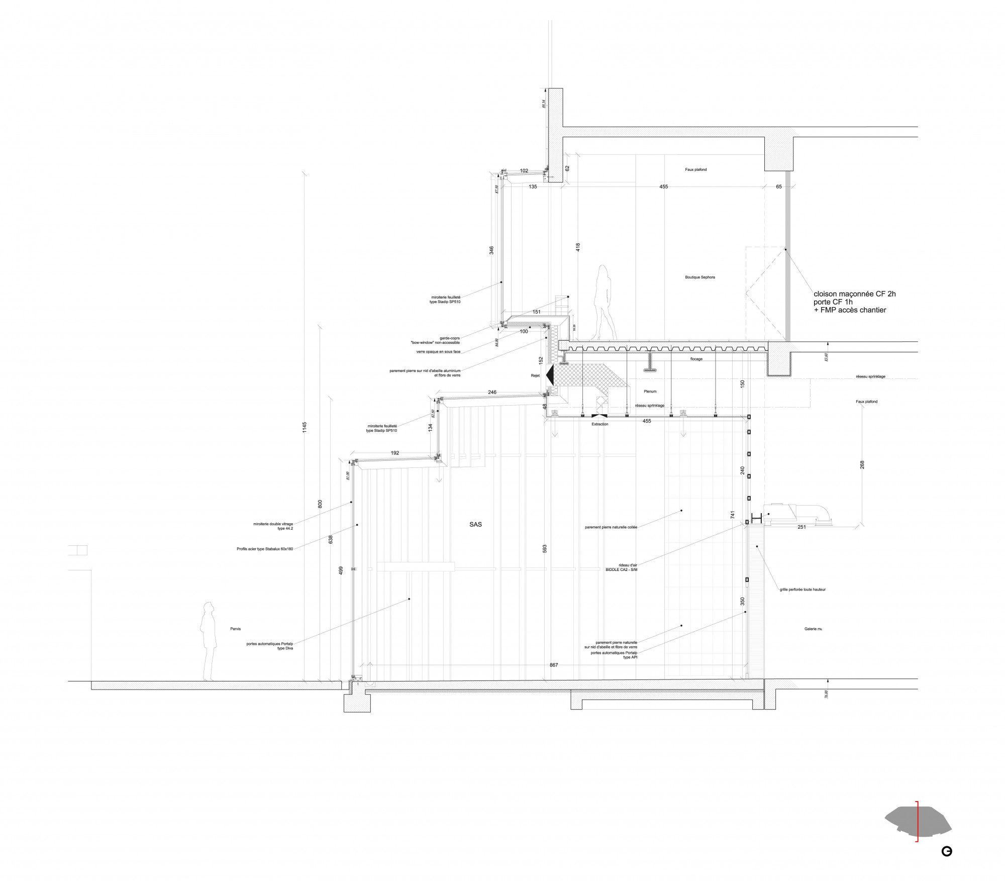
En revanche, le sas et la façade créés à l’entrée principale bénéficient d’une mise en scène plus affirmée, en résonance avec le tissu urbain de Bagnolet.

Une façade en dialogue avec le contexte

Le projet prévoit l’ajout d’une seconde façade en saillie de l’entrée actuelle. Celle-ci s’adapte à la morphologie du bâtiment tout en proposant une lecture renouvelée de son rapport à l’espace public. Elle se compose d’un bandeau cintré en bardage pierre, prolongé par une serre vitrée qui se déploie vers l’extérieur.

Une réponse mesurée à un environnement complexe

L’entrée principale, orientée à l’Est, s’ouvre sur un parvis exposé à un enchevêtrement de réseaux urbains — voiries, bretelles autoroutières — qui génèrent une échelle urbaine morcelée, plus aléatoire que véritablement ordonnée.
Dans ce contexte, l’extension de la façade vise une insertion sobre, évitant tout geste spectaculaire, et s’ajuste finement aux lignes du bâtiment.

Continuité formelle et matérielle

Les volumes ajoutés en façade reprennent des courbures douces, en écho au cintre de l’édifice existant. Le parement en pierre agrafée, qui recouvre déjà la majorité de la façade actuelle, est prolongé afin d’assurer une continuité naturelle entre les parties anciennes et nouvelles du bâtiment.
Ce choix exprime une volonté de respecter l’architecture d’origine, d’en prolonger l’esprit plutôt que de s’y opposer.

Un projet au service de l’usage et du site

À travers cette intervention, le projet entend contribuer à la qualité urbaine du site.
Le gabarit des volumes créés, à hauteur de regard et à l’échelle du cheminement piéton, favorise une appropriation intuitive de l’entrée principale par les usagers du centre.
Les autres ouvrages, tels que les issues de secours, sont traités avec la même attention, dans un souci d’intégration harmonieuse à l’existant.

En savoir plus

Infos projet

Maîtrise d’ouvrage :
USCO
Lieu :
Bagnolet (93)
Équipe de conception :
ilimelgo (architecte mandataire)
articfial (architecte associé)
Metz ingénierie
Mission :
Maîtrise d’oeuvre complète
Surface :
250 m²
Coût des travaux :
1 M€ HT
Phase/date :
Livré en 2013