Défense Plaza

Situé en bordure du quartier d’affaires de La Défense, Défense Plaza a fait l’objet d’une requalification intérieure visant à améliorer la qualité des espaces communs ainsi que l’accueil des usagers.
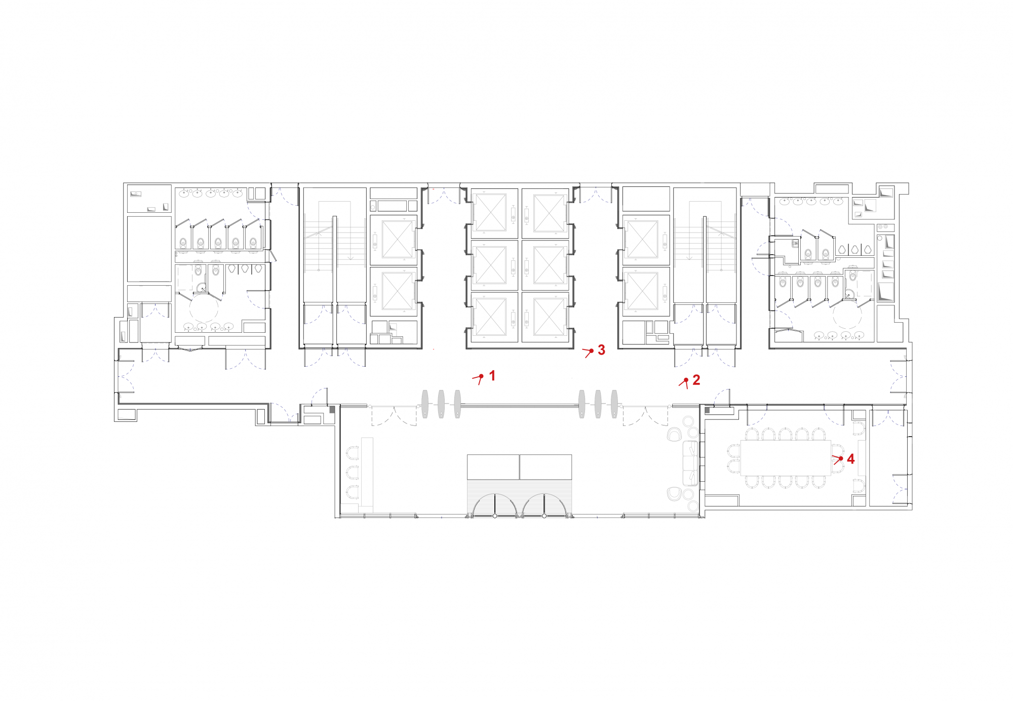
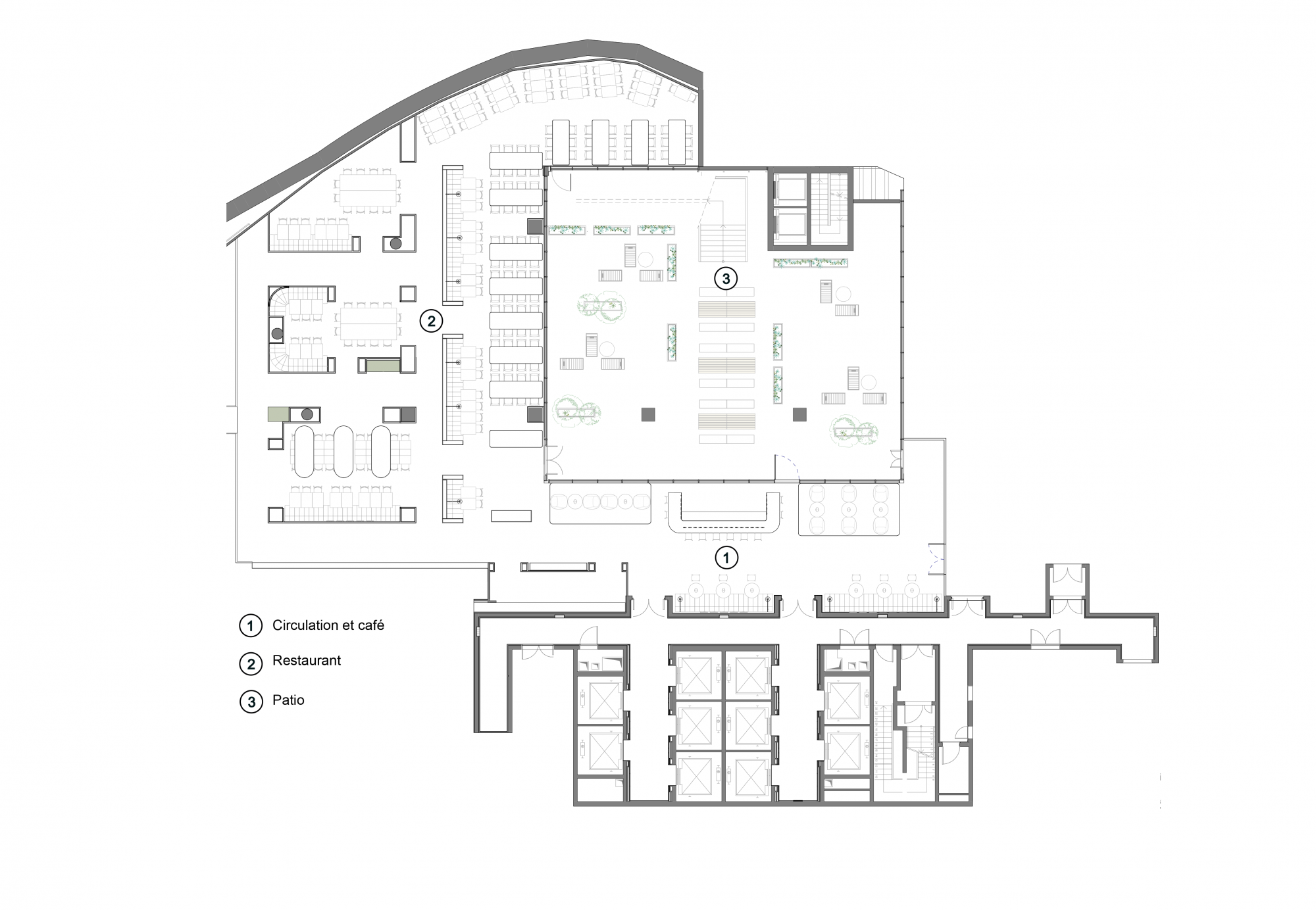
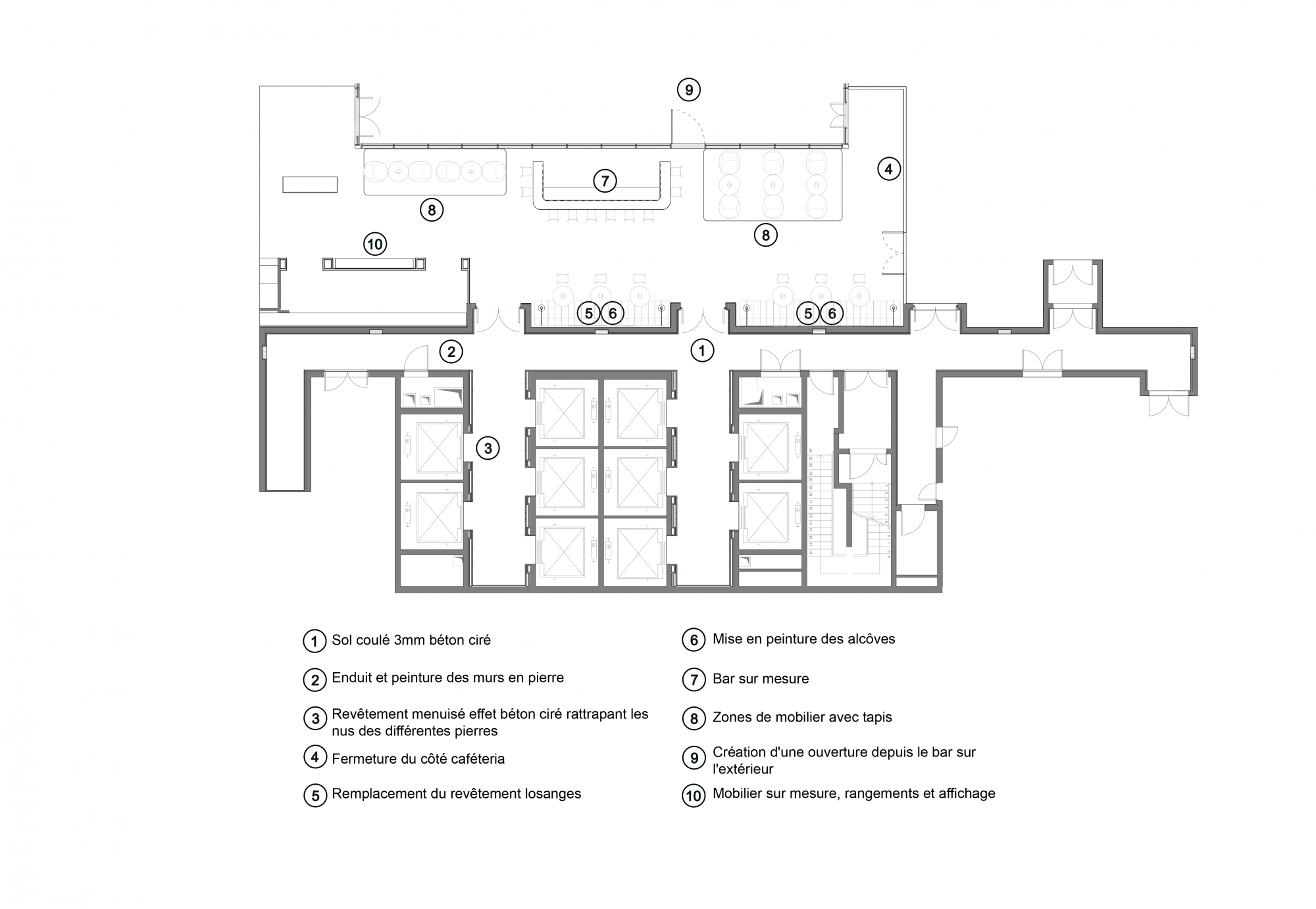
Le projet a pour ambition de redonner cohérence et fluidité aux différents espaces partagés, tout en renforçant l’identité du bâtiment.
Une attention particulière a été portée à la qualité d’usage, à la lisibilité des parcours et au traitement des ambiances, dans une approche à la fois sobre et contemporaine.
L’ensemble des interventions s’inscrit dans une logique de valorisation du site, en dialogue avec son architecture existante.

En savoir plus

Infos projet

Maîtrise d’ouvrage
Défense plaza
Lieu
Puteaux (92)
Equipe de conception
ilimelgo (architecte)
Mission
Maîtrise d’oeuvre complète + OPC
Surface
N.C
Coût des travaux
N.C
Phase/date
Livré 2023