École et pensionnat
Situé au cœur de la Nièvre en Bourgogne, le pensionnat des soeurs Dominicaines Enseignantes de Franjeaux dispose d’un site exceptionnel à l’orée du Bois de la Rivière. Cette école d’une trentaine de pensionnaires aujourd’hui compte s’agrandir dans les prochaines années afin d’accueillir un plus grand nombre d’élèves allant de l’élémentaire au lycée.
Le domaine dispose de plusieurs bâtiments dont un château entouré de douves qui fait l’objet d’une restructuration complète afin de revaloriser le patrimoine ancien et accueillir les dortoirs du pensionnat.
Contexte et situation du site
L’École Notre-Dame de la Sainte Espérance est située sur la commune de Couloutre-le-Château, dans le département de la Nièvre. Le domaine s’étend sur plus de 6 hectares (65 096 m²) et se déploie sur deux plateaux distincts, séparés par une pente marquée d’environ 10 mètres de dénivelé.
La partie haute du site, laissée en l’état naturel, prolonge le Bois de la Rivière avec sa forêt de chênes. Depuis le plateau bas, ce couvert végétal offre un horizon paysager de grande qualité.
Le plateau bas, accessible depuis le chemin du Château, constitue la porte d’entrée du domaine. Ce chemin relie le site à la départementale menant au centre-ville de Couloutre.
Organisation du domaine existant
Le domaine de Notre-Dame de la Sainte Espérance s’organise autour de trois bâtiments patrimoniaux :
-Le Château, entouré de douves alimentées par la Source du Souci, est aujourd’hui consacré à l’enseignement ;
-La Ferme, dédiée au culte et à la vie religieuse du prieuré ;
-Le Pigeonnier, actuellement inoccupé.
L’ensemble accueille un couvent, une école primaire mixte et un collège non mixte.
Programme du projet
Le projet prévoit :
-La restructuration du Château pour y aménager un internat ;
-La transformation partielle de la ferme pour accueillir un réfectoire et deux salles de classe supplémentaires.
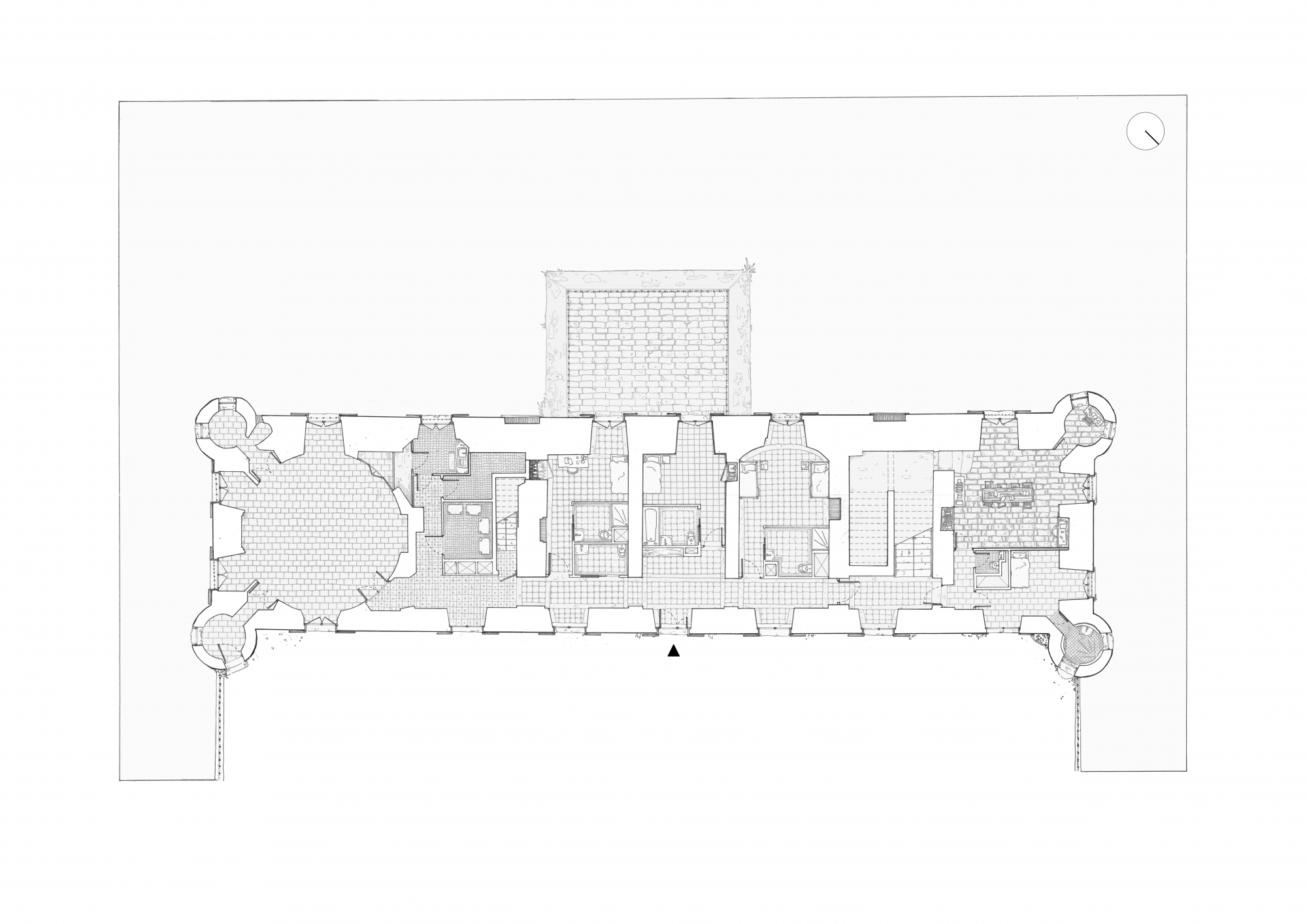
L’internat offrira une capacité d’hébergement pour 201 personnes, dont 82 élèves et 9 surveillantes.
Le rez-de-chaussée du Château sera dédié aux fonctions communes : infirmerie, oratoire, bureau de direction, tisanerie.
Les étages supérieurs accueilleront les dortoirs, chambres et sanitaires, avec aménagement des combles pour optimiser l’espace.
Principe de restauration et interventions sur le bâti
Les interventions architecturales s’inscrivent dans une démarche de respect du patrimoine existant, avec des modifications discrètes visant l’amélioration fonctionnelle et thermique des bâtiments :
-Toiture : entièrement reprise pour cohérence et durabilité. La couverture actuelle, disparate (tuiles et ardoises), sera uniformisée avec des tuiles de Bourgogne artisanales, aux teintes nuancées, dans le respect des usages régionaux.
-Menuiseries : les encadrements, appuis de fenêtres et volets seront conservés et restaurés. En revanche, les châssis de fenêtres et portes-fenêtres seront remplacés pour intégrer du double vitrage, garantissant un meilleur confort thermique.
Infos projet
Maîtrise d’ouvrage :
École Notre-Dame de la Sainte Espérance,
Congrégation du Saint-Nom de Jésus
Lieu :
Couloutre (58)
Équipe de conception :
ilimelgo (architecte)
EPPY (BET Fluides, VRD)
Bimeco (Économiste)
Element (BET Structure)
Mission :
Maîtrise d'oeuvre complète + OPC
Surface :
1 300 m²
Coût des travaux :
3,5 M€ HT.
Phase/date :
Chantier en cours
 
		  				 
		  				 
		  				 
		  				 
		  				 
		  				 
		  				 
		  				