Centre sportif et culturel

Le projet propose de répondre à trois principaux objectifs : faire rayonner ce pôle sportif et culturel à l’échelle intercommunale, assurer un ensemble bâti cohérent entre nouveau et existant, préserver et respecter l’environnement naturel.

Le projet consiste à créer un pôle majeur à la fois culturel, sportif et éducatif, à proximité immédiate d’espaces sportifs existants.

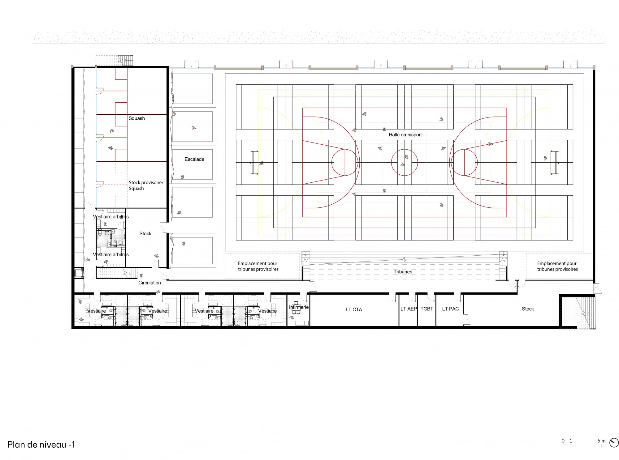
Ce pôle unique sur le territoire sera composé d’un accueil, d’espaces de convivialité, d’espaces sportifs, d’une Halle omnisport intégrant un espace pour la pratique de l’escalade. Il pourra accueillir des compétitions sportives, des spectacles, ainsi que des séminaires mixant espaces de travail et activités sportives et culturelles. Il s’agira d’un véritable pôle intercommunal pluridisciplinaire.

Un pôle intercommunal pluridisciplinaire

Ce pôle unique sur le territoire regroupera des espaces d’accueil, de convivialité, des espaces sportifs, ainsi qu’une Halle omnisports intégrant un mur d’escalade.
Il est conçu pour accueillir une diversité d’usages : compétitions sportives, spectacles, séminaires, mêlant travail, culture et pratique physique.

Une implantation au service de la centralité

Implanté le long du bocage existant et orienté vers les équipements déjà en place, le bâtiment vient structurer une nouvelle centralité.
Une passerelle couverte relie naturellement le nouveau pôle au centre culturel André Blot, renforçant la continuité fonctionnelle et symbolique entre les équipements.

Une composition fonctionnelle claire

Le projet se déploie autour de trois éléments principaux :
-La « Maison des Sports », regroupant l’accueil, les espaces de convivialité et les salles sportives et ludiques.
-La Halle omnisports, avec un volume dédié à l’escalade.
-La terrasse, aménagée au-dessus des vestiaires et locaux techniques, offrant une vue sur le bocage, la Halle et le centre culturel.
Des connexions visuelles riches entre les différents espaces ont guidé la conception intérieure, favorisant une lisibilité immédiate et une mise en relation des usages.

Une insertion paysagère et contextuelle respectueuse

Le projet s’inscrit dans la topographie du site, exploitant les pentes pour organiser les parcours et les usages. Le bocage, conservé et valorisé, joue son rôle de corridor écologique et de repère paysager.
L’architecture, sobre et lisible, s’inspire des longères bretonnes, ancrant le projet dans une tradition vernaculaire revisitée.

Une démarche environnementale affirmée

Le projet valorise les ressources locales et biosourcées :
-structure en bois lamellé-collé pour la Halle omnisports,
-bois massif pour la Maison des Sports,
-isolants biosourcés à base de fibre de bois.
L’ensemble de la conception s’appuie sur des principes bioclimatiques éprouvés : orientation optimale, compacité, choix rigoureux des matériaux, gestion passive de la ventilation et de l’éclairage naturel.

En savoir plus

Infos projet

Maîtrise d’ouvrage :
Commune de la Bouëxière
Lieu :
La Bouëxière (35)
Équipe de conception :
ilimelgo (architecte)
Betom (BET TCE)
Venathec (Acousticien)
Cap terre (BET HQE)
Mission :
Concours
Surface :
4 000 m²
Coût des travaux :
2,1 M€ HT
Phase/date :
Finaliste, classé second 2020