160 Housing units, ZAC Magellan

Within the sports Arc ZAC in Colombes, the agency is designing 3 multi-program buildings:
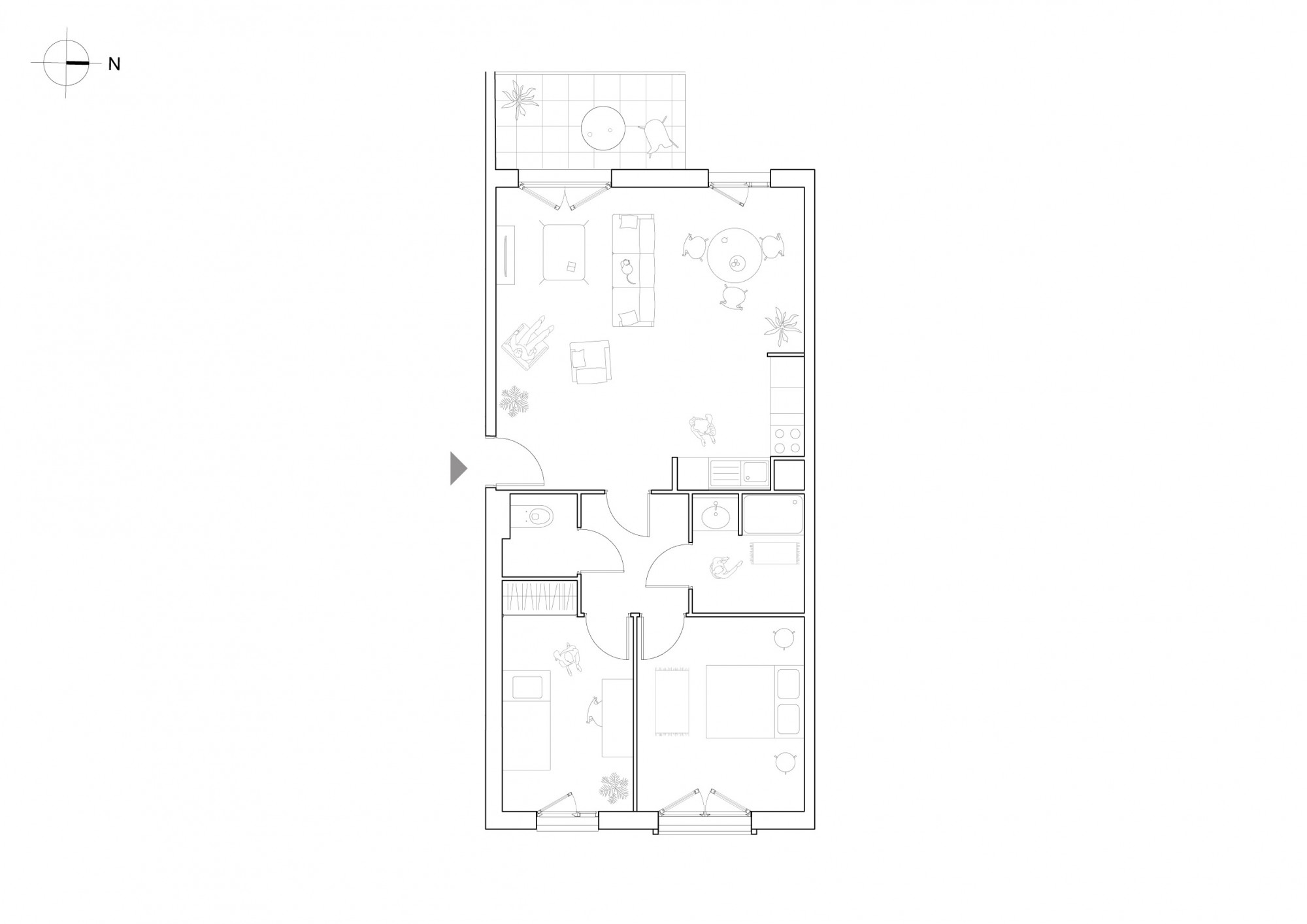
Block 13: Shops in the ground floor and 28 social housing units. Around 2,000 m² of floor area

Block 14: Crèche in the groundfloor (600 m² of floor area) + 30 social housing + 65 homes for accession (approximately 6,140 m² of floor area)

Block 15: 43 social housing units (around 3,000 m² of SDP) + urban farm including in particular a commercial area of 405 m², a reception area of 1,130 m², a 2,140 m² farm and a rooftop restaurant of 310 m². DCE in progress on housing

A new neighborhood on the horizon for 2024

In Colombes, in the Hauts-de-Seine department, a vast urban transformation project is underway: the creation of the Arc Sportif neighborhood on a former industrial wasteland located on the banks of the Seine and on the edge of the A86 highway. This future neighborhood will enjoy excellent accessibility thanks to the extension of the T1 tram line, which will strengthen connections with the rest of the metropolitan area.

A large-scale operation covering 17 hectares

The project covers an area of 17 hectares in the far north of the city and is redesigning a site historically occupied by the former Thales Group facilities. It consists of three main blocks—Cook, Columbus, and Magellan—arranged on either side of the A86 to form a new part of the city.

A comprehensive, mixed-use urban development

When completed, the Arc Sportif will be home to nearly 1,900 housing units, two school complexes, a supermarket and local shops, three urban parks, a nursery, a hotel, an urban rooftop farm, a golf driving range, and a large-scale sports center. The ambition is to create a mixed-use, vibrant and sustainable neighborhood that combines diversity of use, high-quality public spaces and ecological transition.

En savoir plus

Infos projet

Client :
Nexity Appolonia
Location :
Colombes (France)
Design Team :
ilimelgo (architect)
Castro Denissof (Urban archietect of the ZAC)
Scoping (BET TCE)
Mission :
Complete project management
Area :
11 140 m²
Construction cost :
7 M€ HT
Phase/date :
Works in progress 2021